Udogodnienia Inwestycji
Standard i bezpieczeństwo
-
Drzwi Antywłamaniowe
-
Alarm
Udogodnienia
Instalacje i energetyka
-
Woda miejska
-
Kanalizacja
-
Prąd
-
Gas
-
Internet
-
Telewizja
Rekreacja
-
Las
-
Jezioro
W pobliżu
-
Restauracje
-
Szkkoła podstawowa
-
Przedszkole
-
Fryzjer
-
Sklep
-
Supermarket
Komunikacja miejska
-
Autobus
Okolica
-
Na wsi
Szczegóły inwestycji
Ceny nieruchomości:
749000.00 zł
- 749000.00 zł
Realizacja inwestycji:
Przewidywana data zakończenia inwestycji 2026-3
Czy gotowe do odbioru:
Nie
Liczba domów:
2
liczba budynków:
1
Powierzchnia nieruchomości:
125.62 m2
- 125.62 m2
Liczba pomieszczeń:
5 - 5
Liczba kondygnacji:
1
Rodzaj ogrzewania:
Gazowe
Rodzaj materiału:
Pustak
Garaż:
obowiązkowy
Garaż Naziemny:
dostępny w cenie zł
Opis inwestycji
Dom jednorodzinny dwulokalowy wykonany według projektu ARCHON Dom w Narcyzach (BA) o powierzchni użytkowej 125,62 m2.
Powierzchnia netto domu bez uwzględnienia kotłowni i garażu wynosi 103,79 m2.
Lokalizacja:
Nieruchomość położona jest we wsi Gowino, zaledwie 5 km od Wejherowa, co zapewnia szybki i wygodny dojazd do miasta zarówno samochodem, jak i komunikacją publiczną. Lokalizacja ta łączy spokój podmiejskiej okolicy z bliskością pełnej infrastruktury handlowo-usługowej.
W najbliższym sąsiedztwie znajdują się:
- \"Centrum Gowino\" - czyli kompleks lokali w którym na ten moment zgaduje się miedzy innymi sklep Żabka oraz piekarnia - 500 m
- Supermarket Dino - 550 m
- Paczkomat InPost - 550 m
- Szkoła Podstawowa - 850 m
- Niepubliczne Przedszkole - 1,1 km
- Kebab, Pizzeria - 1,1 km
- Sklep spożywczy Lewiatan - 1,2 km
Lokalizacja zapewnia dogodną komunikację zarówno do Wejherowa, jak i Trójmiasta. W odległości 450 metrów znajduje się przystanek autobusowy. Dzięki bliskości Szemudu można w łatwy sposób dojechać do trasy S6, co znacząco ułatwia podróżowanie w kierunku Gdyni, Gdańska i innych miejscowości na Pomorzu.
Budynek:
Dom 2 piętrowy o powierzchni użytkowej 125,62 m2. Powierzchnia lokalu liczona po podłodze wynosi 128,64 m2.
Na pierwszą kondygnacje, której łączna powierzchnia wynosi 68,90 m2 składa się:
1. Wiatrołap 3,41 m2
2. Garaż 17,69 m2 (20,71 m2)
3. Hol 5,04 m2
4. Schody 5,13 m2
5. Salon 24,84 m2
6. Kuchnia 5,52 m2
7. Łazienka 3,13 m2
8. Kotłownia 4,14 m2
Natomiast w skład piętra, którego powierzchnia wynosi 56,72 m2 wchodzi:
1. Hol 4,71 m2
2. Pokój 11,46 m2
3. Pokój 10,66 m2
4. Łazienka 6,07 m2
5. Pokój 11,72 m2
6. Pokój 12,10 m2
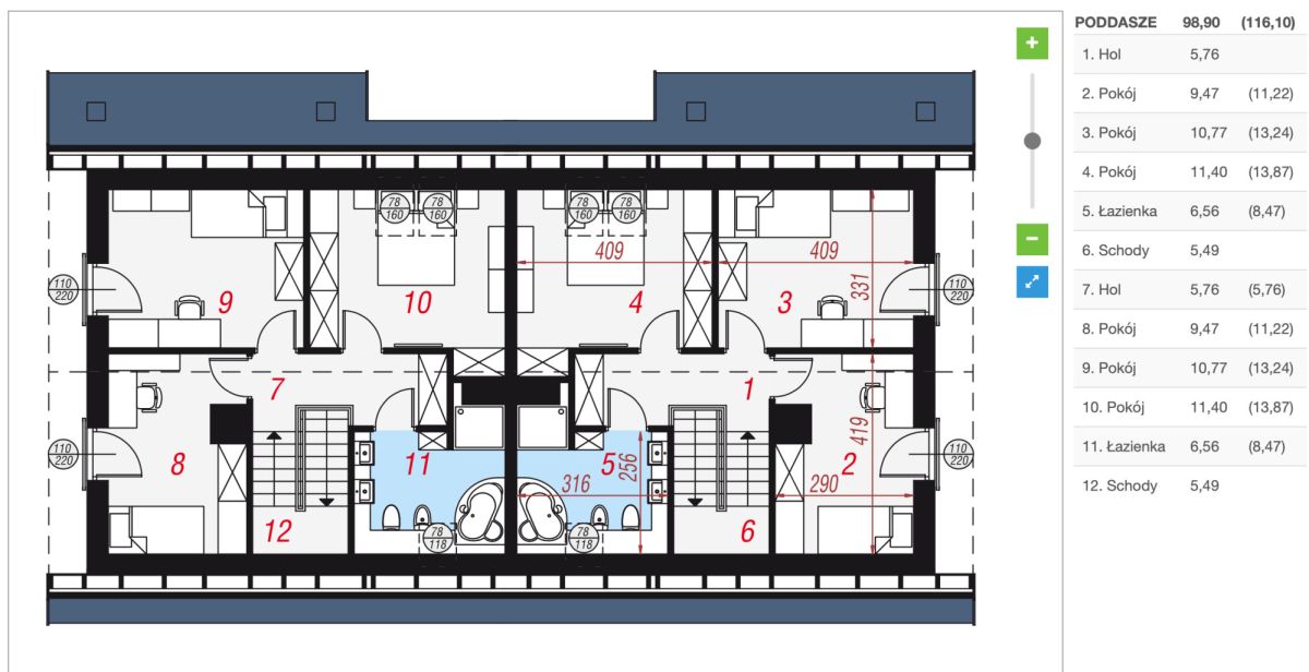
Ostatnia 3 kondygnacja to poddasze.
Wysoki standard wykończenia domu, do którego z pewnością zalicza się m.in.:
- ściany zewnętrzne beton komórkowy 24 cm
- ściany wewnętrzne beton komórkowy 12 cm
- ocieplenie styropianem (20 cm)
- ocieplenie strychu wełną 2x15 cm, zarówno po podłodze jak i w skosach
- trzyszybowe okna PCV
- podwójna ściana między lokalami mieszkalnymi, która zapewnia doskonałą izolację akustyczną
- automatyczna brama garażowa segmentowa
- nowoczesny piec gazowy dwufunkcyjny firmy Vaillant Ecotec plus o mocy 14 kW z zasobnikiem 120 litrów
- ogrzewanie podłogowe we wszystkich pomieszczeniach
- dach pokryty dachówką ceramiczną (gwarancja dachówki - 30 lat)
- wykończenie ścian wewnętrznych - tynki cementowo-wapienne
- instalacje: internetowa, TV, alarmowa,
Działka:
Działka na której znajduje się budynek ma 1000 m2, czyli po 500 m2 przyda na jeden lokal. Jest ona w kształcie prostokąta, płaska i ogrodzona z trzech stron.
Media: woda z sieci, szambo, gaz, prąd, istnieje możliwość podłączenia światłowodu z TK Chopin
Powierzchnia netto domu bez uwzględnienia kotłowni i garażu wynosi 103,79 m2.
Lokalizacja:
Nieruchomość położona jest we wsi Gowino, zaledwie 5 km od Wejherowa, co zapewnia szybki i wygodny dojazd do miasta zarówno samochodem, jak i komunikacją publiczną. Lokalizacja ta łączy spokój podmiejskiej okolicy z bliskością pełnej infrastruktury handlowo-usługowej.
W najbliższym sąsiedztwie znajdują się:
- \"Centrum Gowino\" - czyli kompleks lokali w którym na ten moment zgaduje się miedzy innymi sklep Żabka oraz piekarnia - 500 m
- Supermarket Dino - 550 m
- Paczkomat InPost - 550 m
- Szkoła Podstawowa - 850 m
- Niepubliczne Przedszkole - 1,1 km
- Kebab, Pizzeria - 1,1 km
- Sklep spożywczy Lewiatan - 1,2 km
Lokalizacja zapewnia dogodną komunikację zarówno do Wejherowa, jak i Trójmiasta. W odległości 450 metrów znajduje się przystanek autobusowy. Dzięki bliskości Szemudu można w łatwy sposób dojechać do trasy S6, co znacząco ułatwia podróżowanie w kierunku Gdyni, Gdańska i innych miejscowości na Pomorzu.
Budynek:
Dom 2 piętrowy o powierzchni użytkowej 125,62 m2. Powierzchnia lokalu liczona po podłodze wynosi 128,64 m2.
Na pierwszą kondygnacje, której łączna powierzchnia wynosi 68,90 m2 składa się:
1. Wiatrołap 3,41 m2
2. Garaż 17,69 m2 (20,71 m2)
3. Hol 5,04 m2
4. Schody 5,13 m2
5. Salon 24,84 m2
6. Kuchnia 5,52 m2
7. Łazienka 3,13 m2
8. Kotłownia 4,14 m2
Natomiast w skład piętra, którego powierzchnia wynosi 56,72 m2 wchodzi:
1. Hol 4,71 m2
2. Pokój 11,46 m2
3. Pokój 10,66 m2
4. Łazienka 6,07 m2
5. Pokój 11,72 m2
6. Pokój 12,10 m2
Ostatnia 3 kondygnacja to poddasze.
Wysoki standard wykończenia domu, do którego z pewnością zalicza się m.in.:
- ściany zewnętrzne beton komórkowy 24 cm
- ściany wewnętrzne beton komórkowy 12 cm
- ocieplenie styropianem (20 cm)
- ocieplenie strychu wełną 2x15 cm, zarówno po podłodze jak i w skosach
- trzyszybowe okna PCV
- podwójna ściana między lokalami mieszkalnymi, która zapewnia doskonałą izolację akustyczną
- automatyczna brama garażowa segmentowa
- nowoczesny piec gazowy dwufunkcyjny firmy Vaillant Ecotec plus o mocy 14 kW z zasobnikiem 120 litrów
- ogrzewanie podłogowe we wszystkich pomieszczeniach
- dach pokryty dachówką ceramiczną (gwarancja dachówki - 30 lat)
- wykończenie ścian wewnętrznych - tynki cementowo-wapienne
- instalacje: internetowa, TV, alarmowa,
Działka:
Działka na której znajduje się budynek ma 1000 m2, czyli po 500 m2 przyda na jeden lokal. Jest ona w kształcie prostokąta, płaska i ogrodzona z trzech stron.
Media: woda z sieci, szambo, gaz, prąd, istnieje możliwość podłączenia światłowodu z TK Chopin










