Oferta aktywna | Liczba wyświetleń: 460

Działka na sprzedaż Reda , - Atrakcyjna nieruchomość inwestycyjna – 5 330 m²

750 zł / m2

Cena : 4 000 000 zł

Cena 4 000 000 zł
Cena za m2 750 zł
Powierzchnia 5330.00
Rynek wtórny
Miejscowość Reda
3

Dane Nieruchomości :

Informacje finansowe

Cena 4 000 000 zł
Cena za m2750 zł
Powierzchnia5330.00

Lokalizacja

MiastoReda
Kod pocztowy84-230

Dane ogólne

Nr ofertyR-555816
Rynekwtórny
Staninny

Media

InternetTak

Dane techniczne

Typ budynkudowolny

Opis Nieruchomości :

NA SPRZEDAŻ - DZIAŁKA POD ZABUDOWĘ WIELORODZINNĄ | REDA

Na sprzedaż działka inwestycyjna o powierzchni 5 330 m², przeznaczoną pod zabudowę mieszkaniową wielorodzinną. Nieruchomość posiada bardzo korzystne parametry urbanistyczne, umożliwiające realizację nowoczesnego osiedla mieszkaniowego o niskiej intensywności zabudowy.

Przeznaczenie w planie miejscowym:
  • zabudowę mieszkaniową wielorodzinną
  • zabudowę usługową - usługi wyłącznie w parterach budynków mieszkalnych wielorodzinnych
  • lokalizację obiektów pomocniczych
  • infrastrukturę techniczną
Analiza gruntu / Przykładowy projekt - kluczowe parametry

Parametry zabudowy
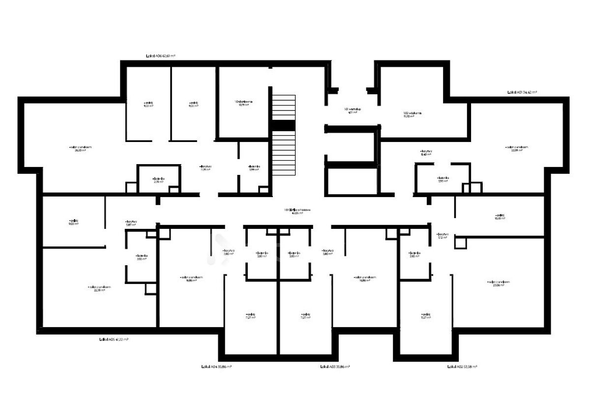
- Powierzchnia zabudowy: 1 247 m² (23,34% powierzchni działki)
  • Budynek A - 416 m²
  • Budynek B - 416 m²
  • Budynek C - 416 m²
- Powierzchnia całkowita nadziemna: 4 990 m²
  • Budynek M - 1 663 m²
  • Budynek Y - 1 663 m²
  • Budynek Z - 1 663 m²
- Powierzchnia całkowita podziemna: 1 398 m²
  • Budynek M - 466 m²
  • Budynek Y - 466 m²
  • Budynek Z - 466 m²
- Intensywność zabudowy (PUM/PUU): 1,20

Powierzchnia biologicznie czynna - 2 796 m² (52,32% powierzchni działki)
  • Trawniki - 2 221 m²
  • Trawniki na stropodachach - 574 m² (50%)
Duży udział zieleni zapewnia atrakcyjność inwestycji oraz komfort przyszłych mieszkańców.

Parametry mieszkaniowe
  • Łączna powierzchnia użytkowa mieszkań (PUM): 3 200 m²
  • Liczba lokali mieszkalnych: 64
  • Średnia powierzchnia mieszkania: ok. 50 m²
Optymalny metraż lokali odpowiada aktualnemu zapotrzebowaniu rynkowemu - idealny produkt inwestycyjny zarówno na sprzedaż, jak i pod wynajem.

Atuty inwestycji
  • Bardzo korzystny wskaźnik powierzchni biologicznie czynnej
  • Możliwość realizacji lokali usługowych w parterach
  • Funkcjonalny podział na trzy budynki
  • Wszystkie parametry zgodne z obowiązującymi przepisami i normami urbanistycznymi
Doskonały potencjał inwestycyjny
Działka stanowi idealną propozycję dla dewelopera poszukującego projektu z gotowymi założeniami urbanistycznymi, umożliwiającego sprawną realizację kameralnego osiedla mieszkaniowego z odpowiednią liczbą miejsc postojowych oraz dużą ilością terenów zielonych.

Cena podana jest ceną netto

W celu uzyskania szczegółowych informacji oraz dokumentacji projektowej zapraszamy do kontaktu.

_
KUP Z NAMI - NAJKORZYSTNIEJ, NAJSZYBCIEJ I BEZPIECZNIE!

Jeżeli zainteresowało Cię powyższe ogłoszenie to:

- Zadzwoń pod wskazany nr tel.
- Umów się na Prezentację,
- Przyjedź i Obejrzyj na żywo,
- Zaproponuj Swoją cenę prezentowanej nieruchomości.

Gwarantujemy bezpieczny zakup i najlepszą CENĘ.
Oferujemy skuteczną i bezpłatną pomoc w uzyskaniu kredytu.
Zapewniamy fachowe doradztwo przy zakupie pod inwestycję.
Wszystkie nasze transakcje są objęte ubezpieczeniem OC w PZU.
Z nami u Notariusza otrzymasz Ofertę Specjalną.

Więcej podobnych ofert znajdziesz na naszej stronie: www.ratajczaknieruchomosci.pl

Rzuty Nieruchomości :

Kalkulator raty kredytowej

Oblicz przybliżoną ratę kredytu hipotecznego

lat
Szacowana rata kredytu przy oprocentowaniu stałym, wkładzie własnym 35% i okresie spłaty 30 lat (wartości startowe podstawione automatycznie).

Rata miesięczna:

3121 zł

Oblicz swoją zdolność z naszym Doradcą ds. kredytów hipotecznych

Sprawdź swoją zdolność

Lokalizacja oferty :

Podobne oferty w tej lokalizacji

Nieruchomości, które mogą Cię zainteresować!